历经20多天如火如荼的征集活动,经过数十位客户和设计师的共同努力。
都都装饰&火星人首届“五优杯”设计师大赛活动作品征集环节已经全部完成了。
我们收到了几十份凝聚着大家灵感和努力的优秀作品!

而现在,努力过后,终于该验收成果了!
话不多说,一起来看看各位老师的作品吧!

从业年限:15年
擅长风格:意式极简,现代轻奢,新中式
参赛作品设计理念:
每个人对设计美的定义与理解都是不同的,我们应该尊重且倾听你所有的想法,哪怕是场冲突,也会努力让这个结局做到最好。
参赛作品设计亮点:
弧形电视墙,让客厅不再单一,增加空间灵性。使用线性光源,使得空间简洁,线条清晰。弧形的垭口处理,让空间过度更精致柔和。主题黑白灰的视觉冲击,赋予空间的一致性。
参赛作品



从业年限:6年
擅长风格:现代轻奢、新中式、中式、极简
生活的品质从某种意义上来说也是我们生活形象和态度的映射。流线型的餐厅和开放型的厨房设计在一起,空间的多功能利用。用独特的方式奔跑于“黑白”之间的“高级灰”做为主色调,餐厅中间用小情调的多功能中岛隔开,餐椅配以深灰色,品味和个性行走于每个细节。
客厅采用原木餐桌和大理石墙面的结合,给人以现代,时尚、大气的感觉。原木的茶几、哑光的大理石背景墙和玄关,再搭配浅色的沙发,大气而不失优雅。清新的绿植和柔和的灯光能烘托出一种温馨和浪漫的氛围。
格调一致的卫浴设计,整体氛围简洁、典雅。白色可以产生明亮和洁白感,具有反射的效果。黑、灰色和乳白色的搭配,生活化和现代化的概念彻底展现。
轻盈、简约是一种生活态度,低调而又舒适,并不损害追求品质和精致的生活状态。
以白色为背景,以原木色的衣衣柜进行隔断成主卧衣帽间,配以淡绿色的床品,整体空间清爽利落又不失柔软,舒适的灯光营造出一种无负担和高质量的生活态度。
原木色地板、浅灰色的床品和整体风格相呼应,用奶白色的卡通装饰给人以优雅的质感。
整个空间的没有过于抢眼的装饰,也没有丰富色彩的叠加,而是所有色调的统一,细节处无不流露出业主精致的生活情调。
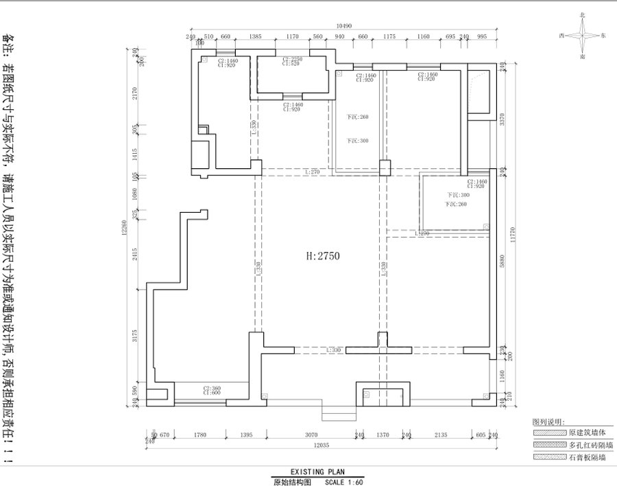
本案例是一个建面:125实际外框面积:127,户型是一个3房两卫的原始户型,在设计沟通阶段,知道了业主喜爱做饭,所以方案设计时,扩大厨房的面积,做了两个朝南的房间和两个衣帽间。



从业年限:9年
擅长风格:美式、现代、轻奢、极简等
个人荣誉:第四届余杭区“良渚杯”室内设计师竞赛一等奖(生隐)设计源于生活,营造自然、品味、格调,简洁就是丰富。
室内装饰采用部分手工制作的装饰物,古朴而富有沧桑感,细腻的肌理呈现了侘寂美学。在开放的空间关系里,光影、微风、空气牵 引着视线,穿透空隙。圆弧可以去掉空间中的戾气,让环境和心情都平和下来。



擅长风格:极简、现代轻奢、港式、美式
住宅同城市保持的一致性,是穿透本质的洞悉。看似野蛮生长的城市实则自有秩序,这也是我关于住宅的理解。对家来说,秩序是生活的自由。
在空间设计上采用手法简约,划分动线,打破客厅和餐厅厨房的原有界限,使客餐厅厨房结为一体,利用线条、装置艺术品、磁吸轨道灯、等细节打造出一个现代极简空间,用材料质感打造生活品质。整个空间一步一景,不同角度呈现不同美感。



从业年限:4年
擅长风格:现代简约,现代轻奢,混搭等等
黑白灰主色调,看似简单、随意,但是通过多种线条、形状的演绎,使得整体空间产生丰富的层次感。乱中有序,适当留白。这种在现代美学基础上进行艺术化的改造,将宜居空间以既简约舒适又自由奔放的风格结合,堪为现代艺术典范。
大胆,简约,多种形式展现户型优点。



从业年限:11年
擅长风格:现代轻奢;新中;极简
我以“极简自然打造温馨生活”的设计理念来呈现“一半设计一半生活”的生活理念。极简风格追求原始质感,在材料的选择上多以铁艺、玻璃、木材为主,有趣温暖。简洁实用的极简风格体现了对自然的尊重,追求功能和美的统一。



从业年限:12年
擅长风格:北欧、日式、中式、法式、欧式
个人荣誉:星艺空间设计银奖;室内节能设计优胜奖
设计源自生活,因人而异;生活因设计而变得更美好!以人为本, 创造功能合理、舒适优美、满足人们物质和精神生活需要的室内环境。让居者在其中得到身心放松,并充分享受生活。
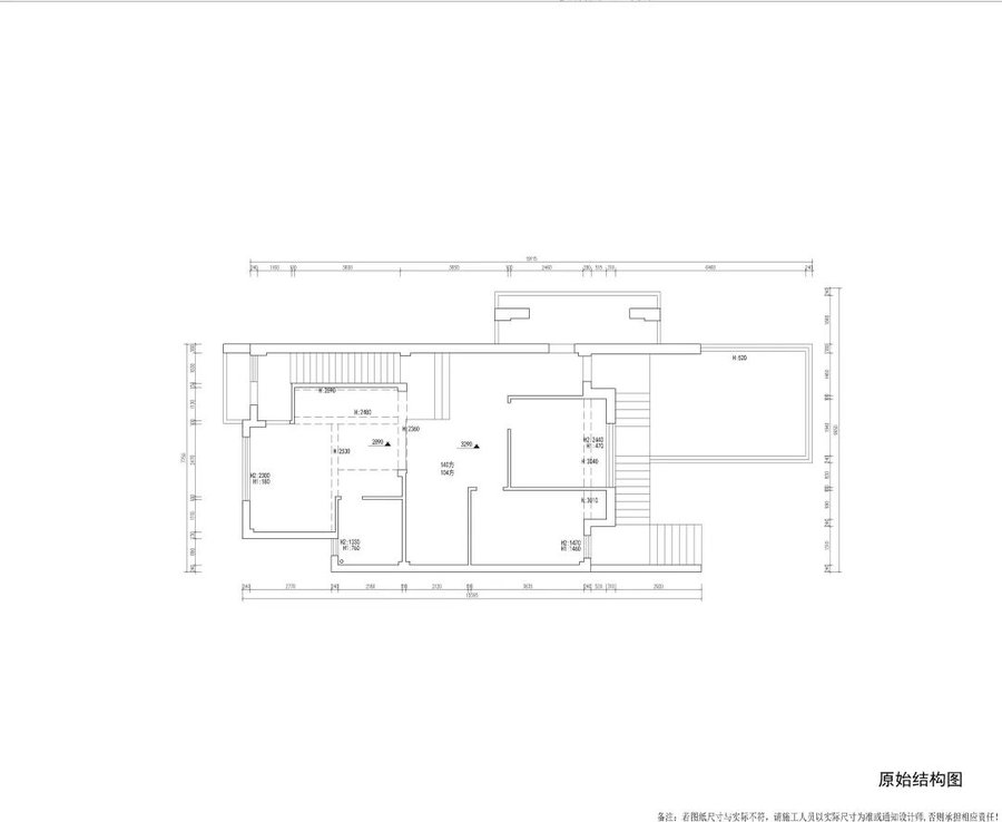
项目所在:杭州西湖边100米
房子结构:四层老实砖混结构,顶楼
房子占地面积:不足52平方
业主需求:目前小两口,未来考虑家长一起照顾未来宝宝,喜欢烘焙,希望有酒柜、鞋柜及换鞋凳,使用洗衣机及烘干机,以及大家都喜欢的明亮通透,温馨大方。
初一看,室内不足43个平方落脚空间,要满足业主的需求完全是不可能的。然而,幸运的是在拆除后,发现层高有4.1米,为项目能够落地打下基础。
原来结构是一个三开间,进门是厨卫区都无法满足正常需求,超大一居室,客餐厅及阳台极其拥挤。
经过改造后,转眼变换成立三室两卫,超大厨房及采光良好的餐厅,阳台与客厅连通,加上通透的楼梯,把空间充分利用起来了,并有了多层次的立体感。
老房子无烟道结构,并针对客户对收纳要求,选用了火星人带蒸烤的集成灶。既能释放上方使用方便的吊柜空间,同时也没有占用地柜空间。
主卧面积等同与原结构一室的大小,并把衣柜及书桌/化妆桌集成一起打造,功能更加齐全。
在一层及层增加出来两个大小适中的房间,满足小家庭未来人口增加带来的居住压力。同时在二楼巧妙地创造出一个卫生间。配置更加合理,使用更加方便。
通过打破旧格局,重新规划,充分利用了每一个角落,合理分配。最终将一个落脚43平方不到的房子,改造成了一套三室两卫两厅的跃层。满足了业主的所有期待,并创造出更多惊喜。



擅长风格:现代
现代简约风格即用几何线条修饰,外观简洁流畅,立面立体层次感较强。体现了现代生活快节奏、简约和实用,但又富有朝气的生活特征,没有过分的装饰,从功能出发,讲究生活的舒适、空间结构的明确美观,强调外观的简洁、大方。
重点就在于简,即外形简洁,室内空间朴素、大方,但其功能性强。从细节上来说,即物品的摆放要整洁,装饰的物品要少,在颜色和布局上来说,颜色的种类最好不要太多,布局要大方,格调要简洁、素雅。



从业年限:10年
擅长风格:现代简约,现代美式、法式等
1、生活空间和活动空间的划分;
2、简约而不简单的动线布局;
3、整体暖色调营造的浪漫氛围感。
1、一楼作为整个空间的公共活动区域,采用大开放的空间布局(敞开式厨房、落地窗户、可移动玻璃隔断的运用等等),既满足了厨房、餐厅、客厅、书房等空间的刚性需求,又让整个空间更加的开阔和具有更好的通透性;同时,火星人集成灶(带蒸烤一体机)和火星人洗碗机(带垃圾处理器)的使用,不仅增加了开放式厨房的美感和增多了厨房的功能性,也大大减少了油烟的排放和提升了生活的便利性和舒适性,可谓是一举多得。完美诠释了科技改变生活,集成灶就是火星人。
2、客餐厅之间的高低台,在基于一楼足够层高的基础之上,提升了整个纵向空间的层次感。同时,贯穿整个地台的楼梯踏步,也联动了客厅和餐厅,让动线更加顺畅;
3、隔断电视背景墙的运用,既划分了玄关和客厅的空间布局,又通过隔断若隐若现的视觉感,拉伸了客厅的视觉纵深,将空间置于朦胧之中,似将生活的繁杂隔绝,恰到好处的疏离;
4、卧室采用半开放套间的空间布局,既保证了主卧的私密性和书房的功能性,又通过两侧过道中间隔断的形式,联动了整个空间,同时,整体的暖色调凸显了浪漫的氛围,让人忘记城市的喧嚣,享受在家的怀抱中。


欣赏完老师们的作品,喜欢哪一位设计师的风格和作品,想必大家心里的天平已经开始有所松动了。
每一位设计师无疑都是优秀的,在自己擅长的风格领域内,都有TA独到的审美和长处。
但只有你心仪的那一位,在某个灵感碰撞的瞬间,一定是与你产生时间空间上的心有灵犀,完美的戳到了你的审美点,画到图纸上,呈现在装修完成的房子里,最终被你看到。这就是人与人之间奇妙的联系!
这样一位与你产生共鸣的TA,值得你为TA投上手里这宝贵的一票!对于设计师而言,你的每一份支持,都是前进的动力!
累计已有 126453 人预约
400-600-5508
—— 装修分期付 快速装新家 ——
—— 合理规划空间 ——
—— 直到您满意为止 ——
请选择您喜爱的风格
轻奢
现代
新中式
北欧
没想好
—— 精准报价 避免入坑 ——
1.请选择您喜爱的风格
轻奢
现代
新中式
北欧
欧式
其他
—— 精准报价 避免入坑 ——
2.请选择房屋面积区间
80㎡以下
80-100㎡
100-140㎡
140-200㎡
200-300㎡
300㎡以上
3.请选择您的户型
两居室
三居室
四居室
五居室
六居室
大平层

—— 精准报价 避免入坑 ——
—— 精准报价 避免入坑 ——