房子是去年装修的了,10.1之前基本完毕,11月初入住。我们是做的半包,装修工人很不错。设计都是我们自己想的,装修开始了我们有些东西还不知道怎么做,工人整天催着问,于是我们从网上下了自己喜欢的图片,让工人对着做的。算下来,装修材料费差不多5w多,给装修队9k,总共6w,刚好是我们预算的极限。下面介绍每张图都有说明,也有价钱和经验的介绍,大家仔细看看吧,都是我俩用心弄得。
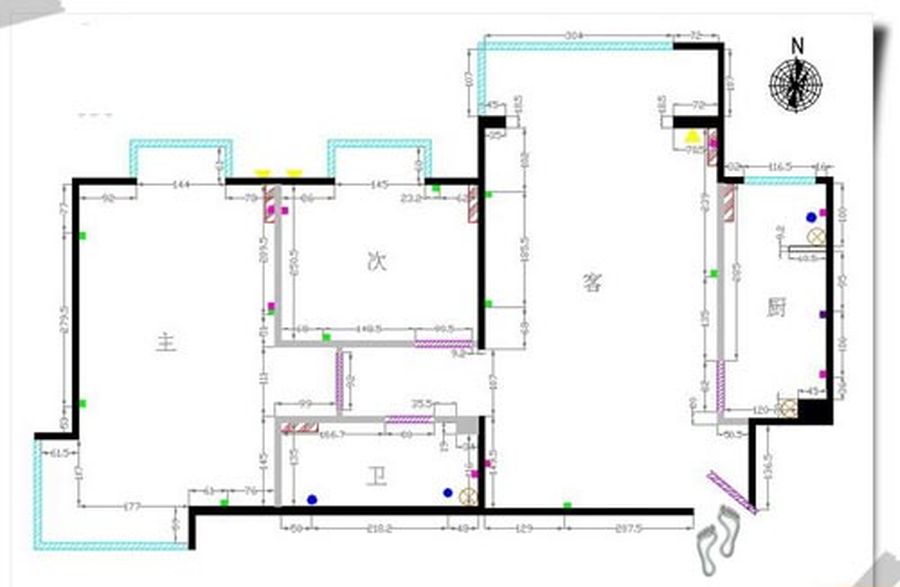
户型图,我俩人去量了尺寸后,我画了一个简易的尺寸图,为了自己购买东西有个尺寸参考

先上户型图

人说客厅是家中重点,来看看客厅吧

门厅玄关,保证不浪费地方的前提下弄好玄关

鞋柜为了迎合我们提前看好的OOD的电视柜,是仿照OOD做的圆角,门上的凹槽自己想的,效果不错!木工小何把鞋柜悬空了,说是这样好打扫卫生,看起来也洋气吊顶是仿照照片做的,玄关还差串珠帘


客厅
阳台上打了一个柜子,门板也像鞋柜一样有凹槽,不过与鞋柜的左右水平对称不一样,这个柜子门板是左右错落对称的凹槽,效果挺不错的。阳台上的酒瓶灯,谐音是“久平”。
电视柜和茶几是3960米、电视是三星液晶40寸的10900米,十一占了大,就十一当天这价格,转天就13900了,可能是标错价了沙发是爱丽努的,3米长,3400米,沙发腿太高了,打算换一个矮的去!

客厅沙发全景

再来一张,还不错吧
1500米休闲小圆桌,这组暖气大概1300多米,70/米,做好了大概将近700米其他小装饰品大多是在天意淘的。
漆的颜色调深了,本来想客厅的墙要浅香芋色的,顶子是淡淡的香芋色,以区别白色的吊顶的。结果颜色都深了好几度,又买了2桶白漆调浅的,客厅的顶子终还是刷了白色的,这样显得客厅亮些,大家一进去也不会犯晕了。
辛苦油漆工了,客厅的顶子刷了7遍(2遍底,2遍浅香芋,3遍白色,终于盖上颜色了),主卧的墙被他刷错了颜色,又多刷了2遍,还浪费了一桶白漆,后消耗2套金装五合一(2面1底),外加2大桶面漆,共计8桶。
提示:好还是自己拿色浆回来调色,如果你想要浅的颜色,那么好只放一点点,因为当漆的颜色没有什么变化时,刷上墙刚好是浅色的;当你都看出来漆的颜色正好是浅色的时候,刷到墙上已经很深了。

客厅的窗帘,吊灯,跟沙发很配套

小搁物架,可以放下我的零零碎碎

餐厅全景图,面积很小

再看个餐厅

餐厅桌上的摆设,很有感觉吧

还是餐厅,灯很漂亮

儿童房,很温馨吧

还是儿童房

小家具

主卧

主卧的窗帘,色调比较深

依旧主卧,哈哈

卫浴间

厨房全景

淘到得小玩意儿

特写,烛台

其实是个小花瓶哦

过道挺长的,鸡肋之地啊

过道特写,周边全是门
累计已有 126453 人预约
400-600-5508
—— 装修分期付 快速装新家 ——
—— 合理规划空间 ——
—— 直到您满意为止 ——
请选择您喜爱的风格
轻奢
现代
新中式
北欧
没想好
—— 精准报价 避免入坑 ——
1.请选择您喜爱的风格
轻奢
现代
新中式
北欧
欧式
其他
—— 精准报价 避免入坑 ——
2.请选择房屋面积区间
80㎡以下
80-100㎡
100-140㎡
140-200㎡
200-300㎡
300㎡以上
3.请选择您的户型
两居室
三居室
四居室
五居室
六居室
大平层

—— 精准报价 避免入坑 ——
—— 精准报价 避免入坑 ——